Energie verde cu panouri fotovoltaice
In ultima perioada se observa o cerere crescanda de panouri solare in piata de larg consum. Fiind o era a energiei si crescand orientarea catre energia verde, acest lucru era inevitabil. Tehnologia de obtinere a energiei cu panouri fotovoltaice este relativ noua si prezinta interes in toata lumea. Aflati mai multe despre energia obtinuta cu panouri fotovoltaice aici.
Castiga energie si fa profit in maxim 3 ani!
Panourile solare reprezinta viitorul energiei atat pentru consum propriu cat si pentru consum industrial. Traim intr-o zona geografica insorita iar acest lucru poate reprezenta un plus valoare pentru producerea de energie.
Incepe propriul proiect si vei produce singur energia de care ai nevoie! Este simplu si eficient. Costurile initiale vor fi acoperite rapid datorita pretului in crestere al energiei electrice. Durata medie de amortizare a unui astfel de proiect este de maxim 3 ani iar durata de functionare este de minim 25 ani. Un plus in domeniu este reprezentat de legislatia in vigoare ce prevede compensarea cantitativa a energiei electrice produsa si livrata in reteaua nationala.
Prevederile principale cu impact asupra energiei din panouri solare:
- cresterea limitei pentru un producator si consumator de energie de la 100kWp la 400kWp;
- producatorii cu putere instalata pana la 200kWp, pot opta pentru compensare cantitativa. Astfel, orice kWh injectat în rețea de sistemul dvs fotovoltaic, va putea fi consumat oricând în decurs de 24 luni;
- producatorii cu putere instalata intre 200kWp si 400kWp, vor fi recompensati pentru energia electrica produsa si livrata la un pret egal cu pretul mediu ponderat inregistrat in PZU in luna in care a fost produsa energia respectiva.
Toate aceste aspecte genereaza o valoare deosebita pentru proiectele energetice cu panouri solare!
Ideale pentru proiecte energetice!
LR4-60HPH 355~385M
- ideale pentru proiecte energetice
- tehnologie modulara avansata cu eficienta sporita
- putere generata sporita adaptat conditiilor de exterior
- module de calitate superioara cu eficienta sporita



12 ANI GARANTIE MATERIALE UTILIZATE
24 ANI GARANTIE PRODUCERE ENERGIE
PRETURI SI DETALII
0.37 EURO/WATT
pret disponibil pentru comenzi la palet de 30 panouri
142 EURO/panou
pret comenzi la bucata (panou)
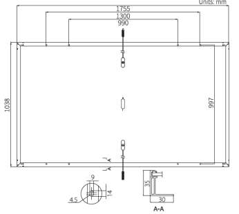
Specificatii tehnice panouri solare:


- dispunere celule 6×20
- cutie jonctiune Ip68, 3 diode
- cablu iesire 4mm, 1200mm
- conector MC4-EVO2
- sticla 1 strat 3.2mm temperred glass
- rama aliaj aluminiu anodizat
- greutate 19.5kg
- dimensiuni 1755x1038x35mm
- ambalare palet 30 buc panou
Operare panouri fotovoltaice:
• temperatura operare -40°C ~ 85°C
• toleranta putere iesire 0~±5W
• toleranta circuit inchis/desc. ±3%
• voltaj maxim sistem 1500V DC
• siguranta maxima in serie 20A
• temperatura nominala funct. 45±2°C
• clasa protectie Class II
• calificativ ignifug UL p 1 si 2
25ani productie de energie cu panouri fotovoltaice!

Lucrari de amenajare panouri solare:








